Boutique RAULT
Bâche de façade pour mobil-home
Code de l'article :
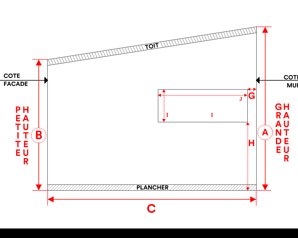
Dimension
- Grande hauteur (A) : 250 cm
- Petite hauteur (B) : 235 cm
- Longueur (C) : 300 cm
- Surface : 7.5m²
- Position de la rampe (C) : Aucune
- Ouverture de la bâche : Non
- Décrochage de la gouttière : Aucune
Fenêtre
- Position : Gauche
- Hauteur (I) : 60 cm
- Largeur (J) : 220 cm
- Distance (G) : 40 cm
- Distance (H) : 120 cm
- Fenêtre avec volet : : Non
Type de toile
- Nom : Protect 670 : La référence en matière de protection étanche
- Couleur : Beige ral 1015
- Poids : 0.67kg/m²
Fixations
- Haut : Tourniquets
- Gauche : Oeillets + sandows
- Droit : Oeillets + sandows
- Bas : Oeillets + sandows
Poids Total : 6.71kg
Disponibilité / livraison
Nous vous invitons à prendre contact avec nos services pour obtenir plus d'informations.
